联系电话:
0523-8733 8088
产品详情
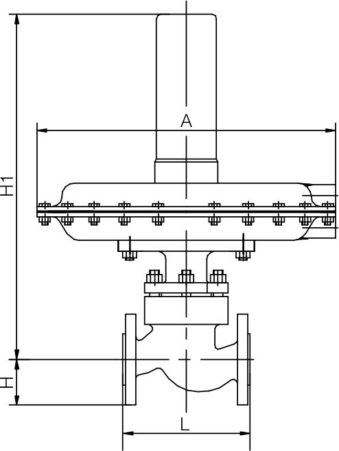
ZZV(C)型自力式微(差)压调节阀无需外加能源,利用被控介质自身能量作为动力源,引入执行机构控制阀芯位置来改变截流面积,从而改变两端的压差和流量,达到控制阀后压力稳定(阀后型)或泄压(阀前型)的目的。具有动作灵敏,密封性好,压力波动小等优点,广泛应用于各种工业设备中气体的微压力控制。


ZZV(C)型自力式微(差)压调节阀无需外加能源,利用被控介质自身能量作为动力源,引入执行机构控制阀芯位置来改变截流面积,从而改变两端的压差和流量,达到控制阀后压力稳定(阀后型)或泄压(阀前型)的目的。具有动作灵敏,密封性好,压力波动小等优点,广泛应用于各种工业设备中气体的微压力控制。



苏公网安备 32128302001489号