联系电话:
0523-8733 8088
产品详情
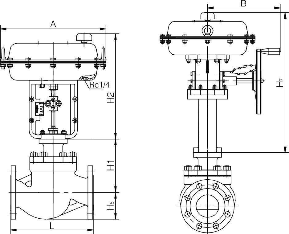
单座调节阀采用顶导向结构,流道呈S流线型。具有结构紧凑、动作灵敏、压降损失小、阀容量大、流量特性精确、维护方便等优点,可用于较苛刻的工作条件。特别适用于泄漏要求高、阀前后压差不大的工作场合。


单座调节阀采用顶导向结构,流道呈S流线型。具有结构紧凑、动作灵敏、压降损失小、阀容量大、流量特性精确、维护方便等优点,可用于较苛刻的工作条件。特别适用于泄漏要求高、阀前后压差不大的工作场合。



苏公网安备 32128302001489号