联系电话:
0523-8733 8088
产品详情
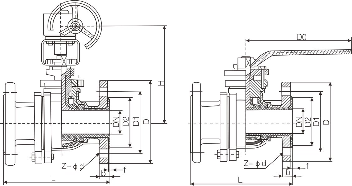
衬氟高性能球阀采用了氟塑料作为球阀的内衬,并配之以新型的带杆球体结构,再加上其独特的弹性唇式密封座结构,使其具有普通球阀的各项优点,能在大压差和较大的温差变化范围内具有高密封性能和低操作扭矩。可作开关或调节之用,本产品适用于各种工业管道中液体和气体的输送(包括蒸气),在各种酸、碱、盐类等强腐蚀性介质中均能很好地工作。


衬氟高性能球阀采用了氟塑料作为球阀的内衬,并配之以新型的带杆球体结构,再加上其独特的弹性唇式密封座结构,使其具有普通球阀的各项优点,能在大压差和较大的温差变化范围内具有高密封性能和低操作扭矩。可作开关或调节之用,本产品适用于各种工业管道中液体和气体的输送(包括蒸气),在各种酸、碱、盐类等强腐蚀性介质中均能很好地工作。



苏公网安备 32128302001489号