联系电话:
0523-8733 8088
产品详情
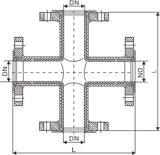
衬氟四通管道管件系列,被广泛应用于化工、电力、冶炼、制药、食品、环保、电镀等领域,可通过各种浓度的酸、碱、盐等,是目前耐腐蚀性能的防腐管。
聚四氟乙烯衬里防腐蚀管道经过多年的的实际使用,直接影响其使用寿命和性能稳定的因素是温度、压力、介质等。主要用于强腐蚀介质多的工业管道上,作为各种连接方式之用。壳体材料选用碳钢与不锈钢等。


衬氟四通管道管件系列,被广泛应用于化工、电力、冶炼、制药、食品、环保、电镀等领域,可通过各种浓度的酸、碱、盐等,是目前耐腐蚀性能的防腐管。
聚四氟乙烯衬里防腐蚀管道经过多年的的实际使用,直接影响其使用寿命和性能稳定的因素是温度、压力、介质等。主要用于强腐蚀介质多的工业管道上,作为各种连接方式之用。壳体材料选用碳钢与不锈钢等。



苏公网安备 32128302001489号